Dalam proses pembangunan, gambar kerja arsitektur berfungsi sebagai panduan teknis yang digunakan oleh kontraktor, tukang, dan tim lapangan. Dokumen ini berisi detail ukuran, struktur, serta spesifikasi yang memastikan bangunan dibangun sesuai perencanaan.
Gambar kerja berbeda dengan gambar konsep. Jika gambar konsep menampilkan ide desain secara umum, gambar kerja menyajikan detail teknis yang siap dieksekusi.
Berikut lima komponen utama dalam gambar kerja arsitektur profesional.
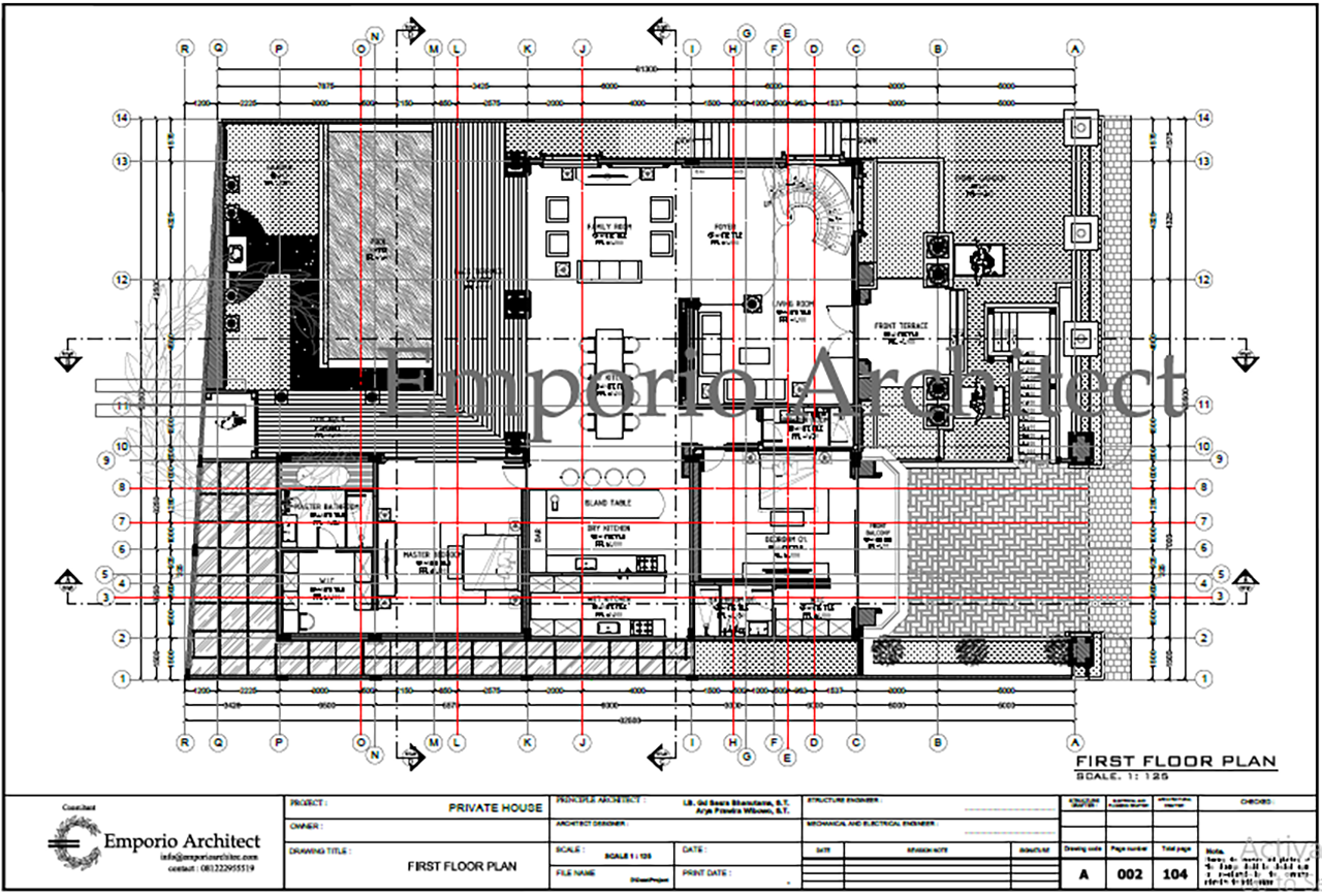
1. Denah (Floor Plan)
Denah adalah tampilan bangunan dari atas yang memperlihatkan tata ruang, ukuran, serta posisi elemen seperti dinding, pintu, dan jendela.

Dalam gambar kerja arsitektur, denah harus mencantumkan:
- Dimensi lengkap setiap ruang
- Keterangan nama ruang
- Ketebalan dinding
- Arah bukaan pintu dan jendela
- Skala gambar
Denah menjadi dasar utama bagi tim konstruksi dalam memahami pembagian ruang.
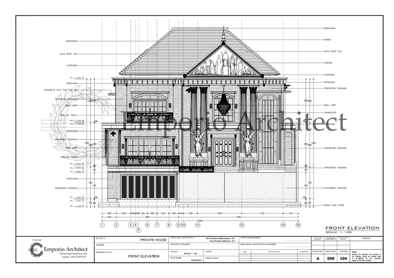
2. Tampak (Elevation)

Gambar tampak menunjukkan sisi luar bangunan dari berbagai arah, seperti tampak depan, samping, dan belakang.
Komponen ini menjelaskan:
- Ketinggian bangunan
- Proporsi fasad
- Detail material eksterior
- Posisi bukaan secara vertikal
Tampak membantu memastikan hasil akhir bangunan sesuai dengan desain yang direncanakan.
3. Potongan (Section)

Gambar potongan memperlihatkan bangunan seolah-olah dipotong secara vertikal untuk menampilkan struktur bagian dalam.
Informasi yang biasanya ditampilkan:
- Tinggi lantai ke lantai
- Struktur atap
- Detail tangga
- Ketebalan pelat lantai
Potongan penting untuk memahami hubungan antar elemen struktural secara menyeluruh.
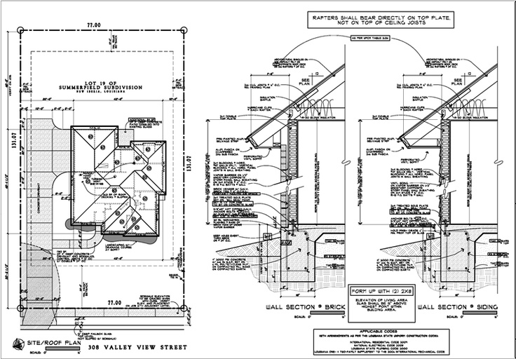
4. Detail Konstruksi

Detail konstruksi menampilkan bagian-bagian spesifik dalam skala yang lebih besar.
Contohnya:
- Detail kusen pintu dan jendela
- Detail sambungan atap
- Detail tangga
- Detail plafon
Detail ini membantu pelaksana lapangan memahami cara pemasangan secara presisi.
5. Rencana Atap dan Site Plan

Rencana atap menunjukkan bentuk, kemiringan, dan sistem penutup atap. Sementara site plan menggambarkan posisi bangunan terhadap lahan dan lingkungan sekitar.
Biasanya memuat:
- Arah utara
- Batas lahan
- Akses masuk
- Drainase atau area terbuka
Komponen ini memastikan bangunan sesuai dengan kondisi tapak.
Pentingnya Gambar Kerja Arsitektur yang Lengkap
Gambar kerja arsitektur yang profesional membantu:
- Mengurangi kesalahan konstruksi
- Memperjelas spesifikasi teknis
- Mempermudah estimasi biaya
- Meningkatkan efisiensi pekerjaan lapangan
Dokumen yang lengkap dan detail menjadi dasar keberhasilan proyek konstruksi.
Ingin Mahir Membuat Gambar Kerja Arsitektur?
Jika kamu ingin mampu membuat gambar kerja arsitektur yang lengkap, presisi, dan siap digunakan untuk proyek nyata, Karisma Academy menyediakan kelas desain arsitektur dan 3D modeling berbasis praktik.
Kamu akan belajar menyusun denah, tampak, potongan, hingga detail konstruksi menggunakan software yang sesuai standar industri.
👉 Daftar sekarang di Karisma Academy dan tingkatkan kemampuan desain arsitektur kamu secara profesional.